こんにちは!設計の井原です。
今回は、料理と買い物を便利にするパントリーのある間取り8プランを紹介したいと思います。
家づくりにおいて、後悔ポイントに挙げられることも多いパントリー。
今やパントリーは生活に欠かせないものとなりました。
パントリーは広さだけでなく、家のどこにつくるか「場所」も大きなポイントです。
プランと一緒に詳しく説明させていただきます♪
目次
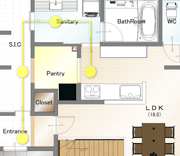
玄関からパントリーまで一直線に行ける便利な間取り

玄関ドアを開けた後は、パントリーまで扉がないので両手に荷物を持って運べます。
パントリーの手前にはストレージ空間があり、パントリーに置ききれない常温保存品や宅配便を保管できます。

また、玄関を左手に進むと手洗い器を通ってリビングに入れるので、買い物帰り以外はこちらの動線を使うと便利です。
階段下には、キッチンからもリビングからも使いやすいクローゼットがあり、収納をたっぷり備えたプランです。
キッチンの背面に大きなパントリーがある間取り

キッチン間口よりも大きなパントリーは、食器から缶詰・乾物までオールマイティーに収納でき、スライド扉で隠せることがポイントです。

リビングダイニングからパントリーが見える配置ですが、とてもスッキリして見えます。

生活感の出やすい冷蔵庫を隠すことができるパントリーのある間取り

玄関からシューズクロークを通ってダイレクトにパントリーへアクセスできます。

扉のない風通しの良いパントリーは、食品を保管する上で理想的な環境です。
キッチンから洗濯機までは数歩で届き、動線の良さが忙しい時間の家事をサポートします。
さらに、洗面脱衣室がシューズクロークにつながっているので、子どもたちが泥だらけで帰ってきてもお風呂に直行できる便利な動線です。
勝手口から直接アクセスできる使い勝手の良いパントリーのある間取り

買い物帰宅後に最短動線で食材を片付けられるウォークスルータイプのパントリーです。
キッチンからの家事動線も良く、料理中にもパントリーが活躍します。
キッチンの大開口窓からは庭を望め、遊ぶお子さんを見守れる環境。コンロ横の引き戸を開放しておけば、回遊動線にもなります。
2つのパントリーがある間取り

玄関から入れるウォークスルータイプのパントリーと、キッチン背面のクローゼットタイプのパントリー、2つのパントリーがある間取りです。

使用頻度の高い食品はクローゼットタイプのパントリーに収納して取り出しやすく。
使用頻度の低い物や生活感が出やすい物は、ウォークスルータイプのパントリーに収納、と使い分けができます。
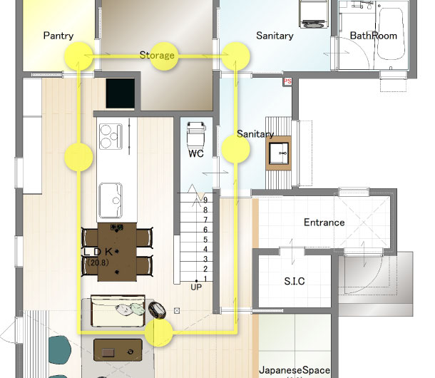
パントリーを含む1階全体が回遊動線となっている間取り

パントリーはウォークスルータイプとなっており、ストレージ空間を通ってランドリールーム、洗面室へと行けるようになっています。

冷蔵庫はキッチンから使いやすい位置にありますが、ダイニングからは見えにくい配置です。
生活感の出やすい物をパントリーやストレージに収納すれば、インテリアが映えるキッチンを作ることができます。
二列型キッチンの奥にあるウォークインタイプのパントリーのある間取り

4帖半程度の広さがあり、電子レンジやコーヒーメーカーなどの家電製品も十分収納できる空間となっています。
玄関からすぐキッチンに入れるので、買い物帰宅後の片付けもスムーズです。
いかがでしたでしょうか。
パントリーは利便性を重視するならウォークスルータイプや、シューズクロークから入れるパントリー、
収納量を重視するのであれば、ウォークインタイプのパントリーなど、
お客様一人一人のご要望に合わせてご提案させていただきます。
お気軽にお問い合わせくださいね♪
―――――――――――――――――――――――――――――――――――――――
◎スタッフ邸が見学ができるようになりました。
いつでもスタッフの自邸をご見学ください
スタッフの住まい方や、インテリア、収納方法などご参考にしてください◎
お家を建てるまでの考えや、住んでみての感想やどんな想いでお家を考えたのかなど、質問に答えさせていただいております。
是非、お家づくりのご参考にしていただければと思います。
ご予約フォームよりご予約お待ちしております。
クリック⇓⇓⇓
------------------------------------------
【自社分譲地情報】
【ご予約受付中】
四国中央市金生町下分自社分譲地「ウエストリバー桜住吉」分譲地・土地個別相談会 随時開催中




------------------------------------------
【ご予約受付中】
HOUSE de NISHIKAWAお家づくり無料相談会 随時開催中

------------------------------------------
ONE‘S STYLE NISHIKAWA公式Instagramでは、ROOM TOURを沢山投稿しております。
是非フォローやいいね!、お気に入りには保存などもお気軽によろしくお願いいたします。
Tiktokも始めました♪
➡ 公式Tiktok
YouTube始めました♪
クリックしてね
⇓⇓⇓
フォローやいいね♡をよろしくお願いいたします。
⇓⇓⇓
------------------------------------------

